Logovo Group

Каждый проект - наше вдохновение

Кедровая баня Майер

Характеристики проекта

    Технология рубки:
    Канадская
    Площадь:
    40 м²
    Количество этажей:
    1
От 3 500 000 ₽

Проект бани с террасой площадью 40 квадратных метров, выполненный из кедровых брёвен, представляет собой идеальное сочетание функциональности и экологичности.

Баня спроектирована с учётом всех необходимых функциональных зон: парная, моечная, комната для отдыха и терраса. Терраса является отличным местом для отдыха на свежем воздухе, где можно насладиться видом и подышать свежим воздухом после посещения парной.
Использование кедровых брёвен в строительстве обеспечивает отличную теплоизоляцию и сохранение тепла внутри помещения, что позволяет экономить на отоплении. Кроме того, кедр обладает антисептическими свойствами, что способствует созданию здорового микроклимата внутри бани.

Проект предусматривает возможность адаптации под индивидуальные потребности заказчика, включая выбор отделочных материалов, мебели и дополнительных удобств. Это позволяет создать уникальное и комфортное пространство, отвечающее всем пожеланиям владельца.

*Стоимость указана за стеновой комплект, без учета доставки.

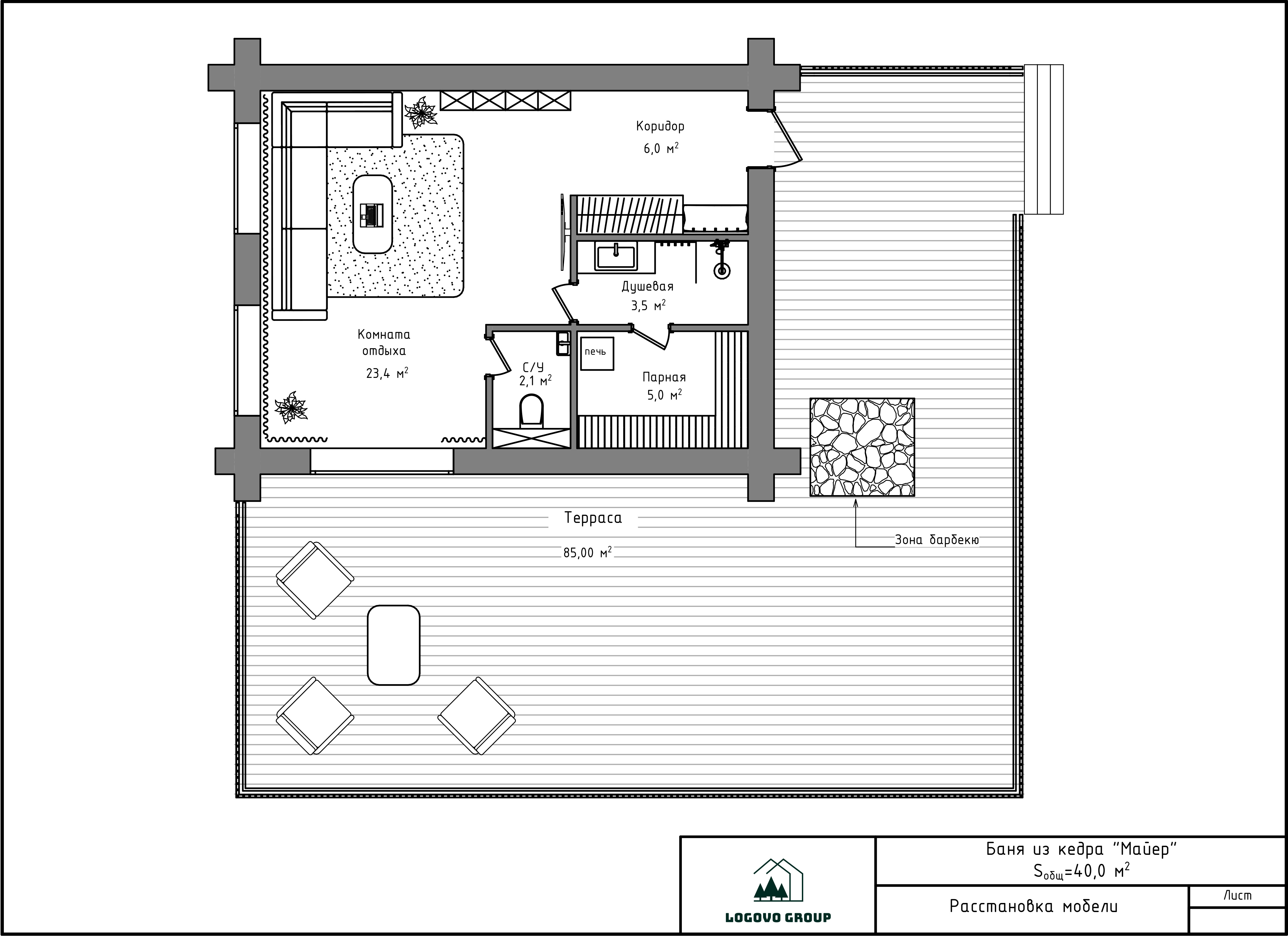
Планировка

Планировка проектов — это процесс разработки схемы распределения помещений и функциональных зон. Она включает следующие ключевые элементы: зонирование, графическое представление, учет требований, инженерные системы, эстетика. В результате планировка позволяет создать удобное, безопасное и эстетически привлекательное жилое пространство.

Дом из кедра ВАРМЗ

  • Технология рубки:

    Канадская
  • Количество этажей:

    1
От 18 360 000 ₽

Баня из кедра Лесная

  • Технология рубки:

    Канадская
  • Количество этажей:

    1
От 4 760 000 ₽

Двухэтажный кедровый дом Номад

  • Технология рубки:

    Канадская
  • Количество этажей:

    2
От 13 600 000 ₽

Дом Тауэрс

  • Технология рубки:

    Канадская
  • Количество этажей:

    2
От 20 000 000 ₽

Оставьте заявку

Чтобы получить консультацию, оставьте вашу контактную информацию. Наши специалисты свяжутся с вами в ближайшее время!