Logovo Group

Каждый проект - наше вдохновение

Двухэтажный кедровый дом Номад

Характеристики проекта

    Технология рубки:
    Канадская
    Площадь:
    160 м²
    Количество этажей:
    2
От 13 600 000 ₽

Дом из кедра 160,4 м² — уют, простор и натуральная красота в каждом элементе

Представляем вам проект двухэтажного деревянного дома, созданного с любовью к природе и комфорту. Этот дом из кедра площадью 160,4 м² — идеальное решение для тех, кто ценит экологичность, тепло дерева и продуманную планировку. Строительство деревянных домов по такому проекту — это не просто возведение жилья, а создание уютного семейного гнезда, где каждая деталь продумана до мелочей.
  
Дом возводится из цельного сруба из кедра, что придаёт ему не только эстетическую привлекательность, но и уникальный аромат, благотворно влияющий на самочувствие. Большая терраса позволяет наслаждаться свежим воздухом в любое время года, а крытая парковка обеспечивает удобство и защиту автомобиля от осадков и солнечных лучей.

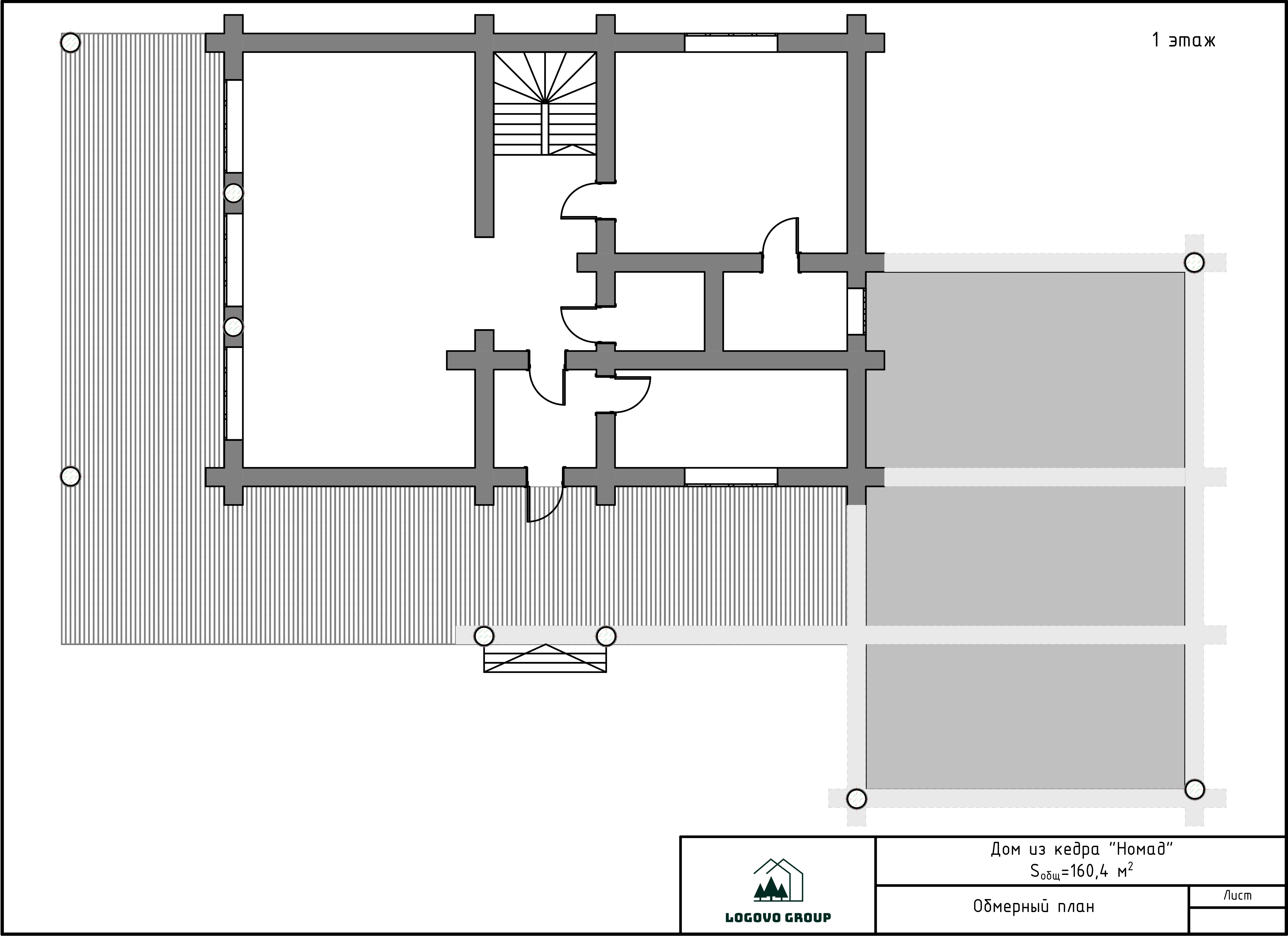
Планировка первого этажа  
Первый этаж — сердце дома. Просторная кухня-гостиная с эффектом второго света наполняет пространство светом и ощущением свободы.  
- Кухонная зона оборудована вместительным угловым гарнитуром с барной стойкой, встроенной техникой и островком для приготовления пищи.  
- Гостиная оформлена мягкой зоной с диваном, креслами и журнальным столиком и уютным камином.  
- Спальня с двуспальной кроватью, прикроватными тумбами и встроенным шкафом идеально подойдёт для гостей или детской.  
- Прихожая включает гардеробную систему и зеркало во весь рост. Отсюда начинается лестница на второй этаж с деревянными ступенями и коваными перилами.  
- Также на первом этаже расположены санузел, ванная комната с полноценной ванной, а также техническое помещение для размещения инженерного оборудования.

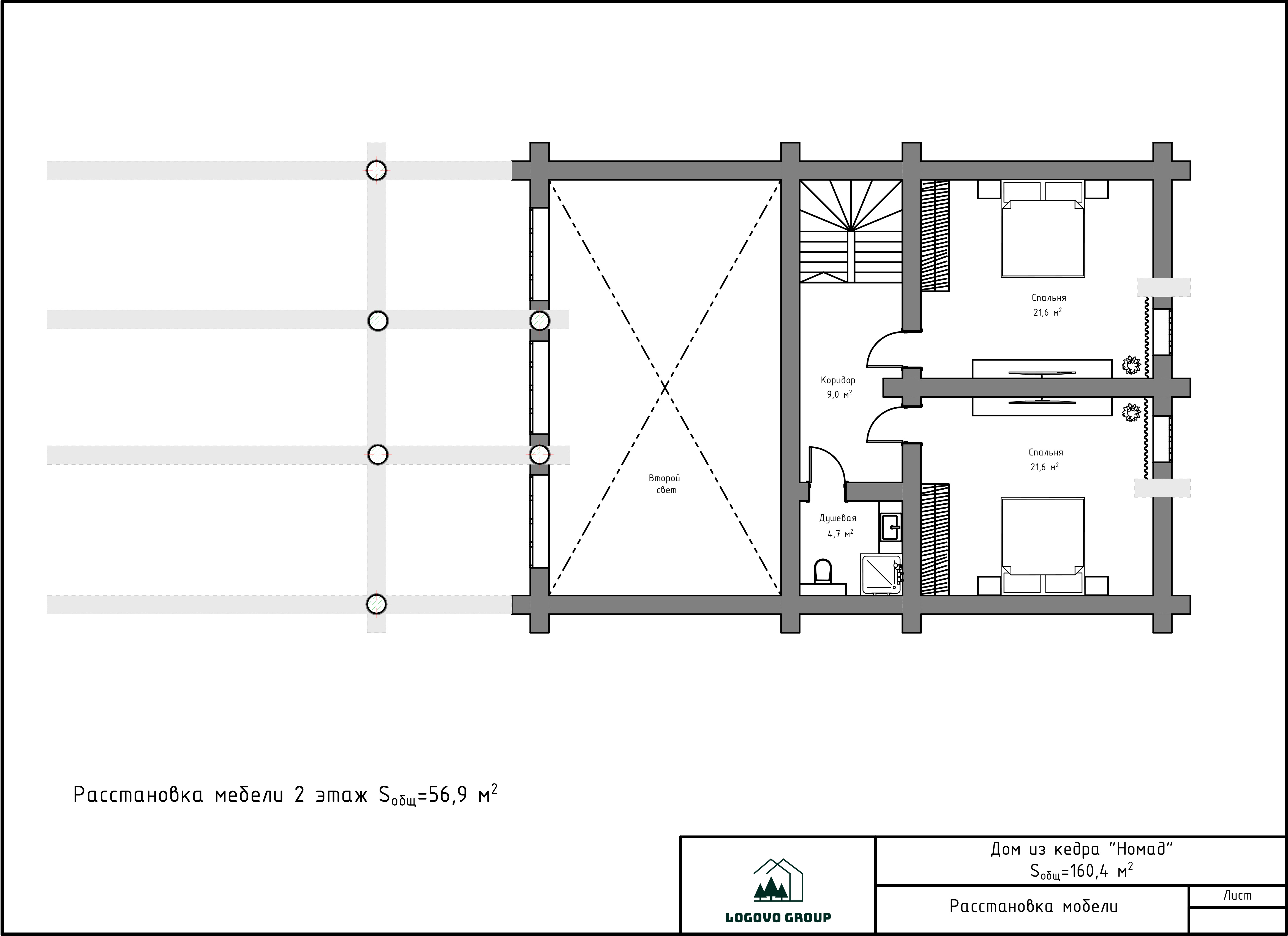
Планировка второго этажа  
Второй этаж — личное пространство для отдыха.  
- Две спальни оформлены с учётом максимального комфорта: в каждой — двуспальная кровать, шкафы для хранения, рабочий стол и мягкое кресло у окна.  
- Современная душевая комната с тропическим душем, раковиной и системой вентиляции обеспечивает свежесть и чистоту.

Этот деревянный дом — не просто жильё, а воплощение гармонии между природой и современным бытом. Строительство деревянных домов из кедра — это выбор в пользу здоровья, уюта и долговечности. Проект идеально подходит как для постоянного проживания, так и для загородного отдыха в окружении леса и свежего воздуха.

Обратите внимание, что это лишь примерное описание проекта. Для получения более подробной информации оставьте заявку и мы с вами свяжемся.
*Стоимость указана за стеновой комплект, без учета доставки.

Планировка

Планировка проектов — это процесс разработки схемы распределения помещений и функциональных зон. Она включает следующие ключевые элементы: зонирование, графическое представление, учет требований, инженерные системы, эстетика. В результате планировка позволяет создать удобное, безопасное и эстетически привлекательное жилое пространство.

Дом из кедра ВАРМЗ

  • Технология рубки:

    Канадская
  • Количество этажей:

    1
От 18 360 000 ₽

Баня из кедра Лесная

  • Технология рубки:

    Канадская
  • Количество этажей:

    1
От 4 760 000 ₽

Дом Тауэрс

  • Технология рубки:

    Канадская
  • Количество этажей:

    2
От 20 000 000 ₽

Беседка Маяк

  • Технология рубки:

    Post&Beam
  • Количество этажей:

    1
От 2 550 000 ₽

Оставьте заявку

Чтобы получить консультацию, оставьте вашу контактную информацию. Наши специалисты свяжутся с вами в ближайшее время!