Logovo Group

Каждый проект - наше вдохновение

Дом Тауэрс

Характеристики проекта

    Технология рубки:
    Канадская
    Площадь:
    235 м²
    Количество этажей:
    2
От 20 000 000 ₽

Двухэтажный деревянный дом, построенный по технологии канадской рубки из кедра, — это идеальное сочетание природной красоты, энергоэффективности и долговечности. Такие дома пользуются высоким спросом среди тех, кто ценит экологичное жильё, комфорт и архитектурную выразительность. Благодаря использованию натурального кедра и передовой канадской технологии строительства, такой дом станет надёжным и уютным семейным гнёздышком на десятилетия вперёд.

Преимущества дома из кедра по канадской технологии

🔹 Высокая теплоизоляция  
Канадская рубка предполагает сборку каркасно-щитовой конструкции с утеплением минеральной ватой или эковатой. Это обеспечивает низкое энергопотребление, комфортную температуру зимой и прохладу летом. Дом из кедра по этой технологии потребует минимум затрат на отопление.

🔹 Экологичность и здоровый микроклимат
Кедр — природный антисептик. Он выделяет фитонциды, очищающие воздух, улучшающие иммунитет и способствующие крепкому сну. Внутри дома всегда будет свежий, хвойный аромат и здоровый микроклимат, особенно важный для семей с детьми и аллергиками.

🔹 Долговечность и устойчивость к гниению
Массив кедра обладает естественной устойчивостью к влаге, грибку и насекомым. Даже без дополнительной обработки такой дом прослужит более 80–100 лет. При грамотной усадке и финишной отделке — сохранит первозданный вид на долгие годы.

🔹 Быстрое строительство и гибкость проектов
Канадская технология позволяет возводить дома в сжатые сроки — от 2 до 4 месяцев. Сборка осуществляется из готовых панелей, что снижает влияние погодных условий. Возможна реализация любых архитектурных решений: мансарды, эркеры, большие окна, террасы, зимние сады.

🔹 Эстетика и дизайн  
Внешний вид дома подчёркивает природную текстуру кедра. Тёплая золотистая древесина придаёт фасаду благородный вид. Интерьеры отличаются уютом, естественным освещением и возможностью комбинировать дерево с камнем, стеклом и металлом. Дом органично вписывается в любой ландшафт — от лесного участка до загородного посёлка.

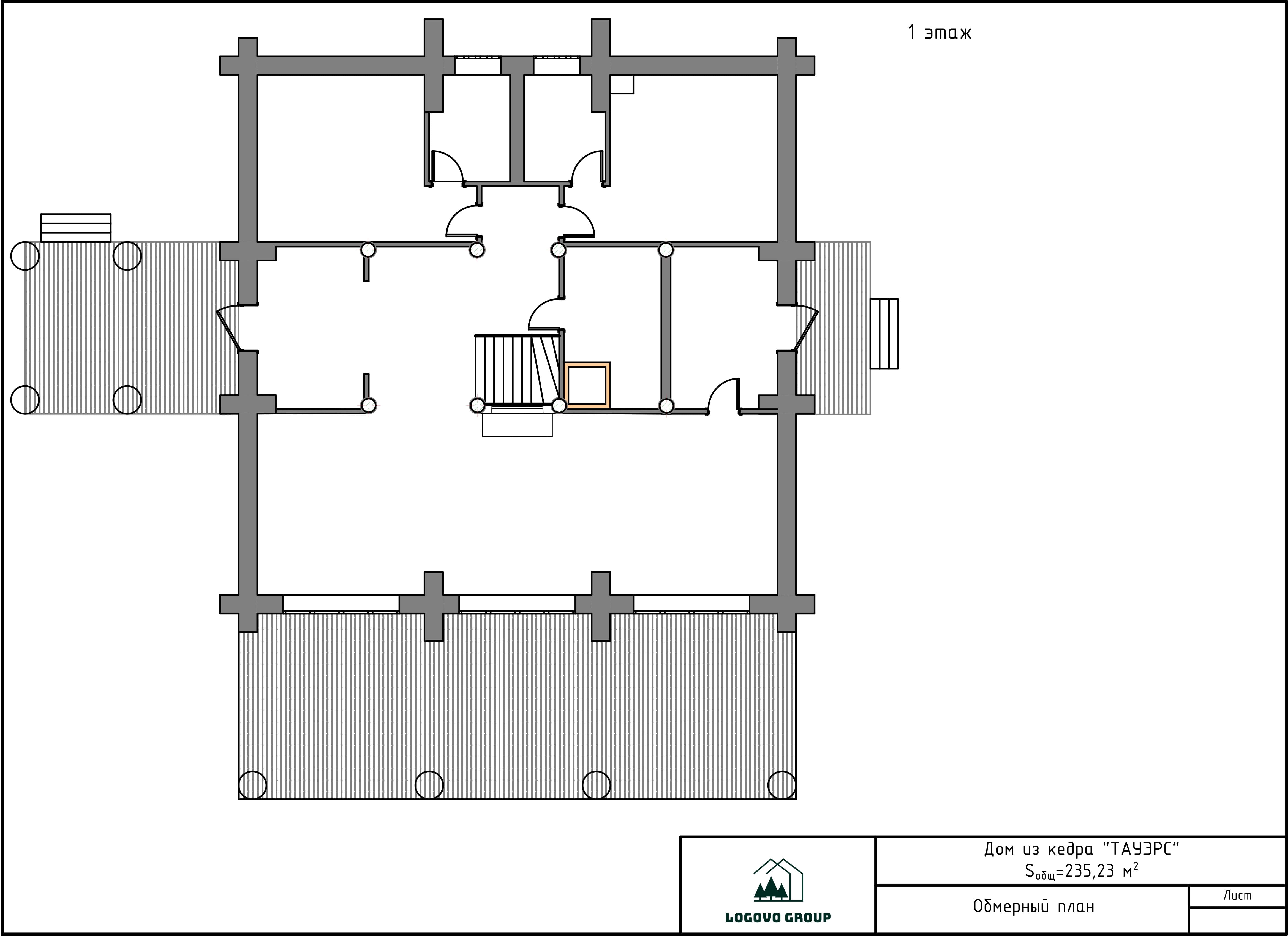
Планировка двухэтажного дома:

- Первый этаж: прихожая, просторная кухня-гостиная с камином, санузел, две спальни, техническое помещение. Большие панорамные окна и выход на террасу.
- Второй этаж: спальня, ванная комната, балкон или лоджия с видом на природу. Возможна мансардная конструкция для дополнительного света.

Почему выбирают канадскую рубку из кедра?

✅ Низкая теплопроводность кедра — дом остаётся тёплым даже при минус 30°C  
✅ Лёгкий фундамент — снижает стоимость строительства  
✅ Звукоизоляция — тишина и уединение внутри  
✅ Соответствие нормам СНиП и СП — безопасность и надёжность  
✅ Возможность «загородной жизни» круглый год



Такой дом — не просто жильё, а инвестиция в здоровье, комфорт и будущее. Если вы ищете загородный дом из кедра по канадской технологии, который сочетает природную красоту, современные технологии и разумную цену — это идеальный выбор. Подходит для постоянного проживания и дачного отдыха.

Планировка

Планировка проектов — это процесс разработки схемы распределения помещений и функциональных зон. Она включает следующие ключевые элементы: зонирование, графическое представление, учет требований, инженерные системы, эстетика. В результате планировка позволяет создать удобное, безопасное и эстетически привлекательное жилое пространство.

Дом из кедра ВАРМЗ

  • Технология рубки:

    Канадская
  • Количество этажей:

    1
От 18 360 000 ₽

Баня из кедра Лесная

  • Технология рубки:

    Канадская
  • Количество этажей:

    1
От 4 760 000 ₽

Двухэтажный кедровый дом Номад

  • Технология рубки:

    Канадская
  • Количество этажей:

    2
От 13 600 000 ₽

Беседка Маяк

  • Технология рубки:

    Post&Beam
  • Количество этажей:

    1
От 2 550 000 ₽

Оставьте заявку

Чтобы получить консультацию, оставьте вашу контактную информацию. Наши специалисты свяжутся с вами в ближайшее время!